fletta

fletta

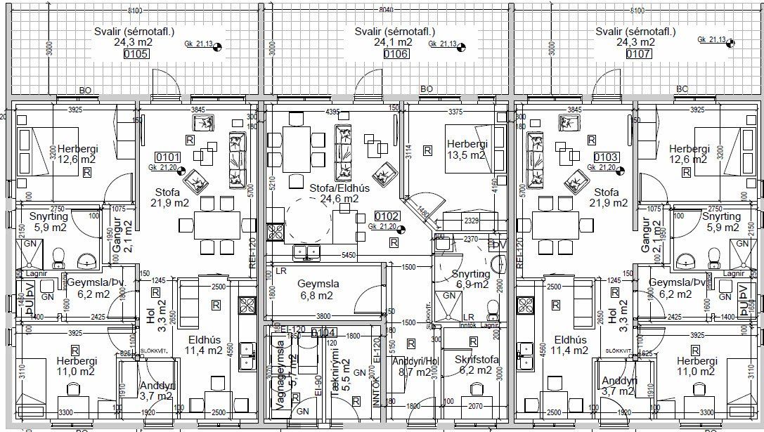
Trönudalur 1-7 fjögur 6 býli tekin í notkun 2019

Flokkur: Fjölbýlishús

Framkvæmdaár: 2018 -2019

Verklýsing


fletta

fletta